Recupero di edificio storico nel quartiere ottocentesco di Barriera di Milano.
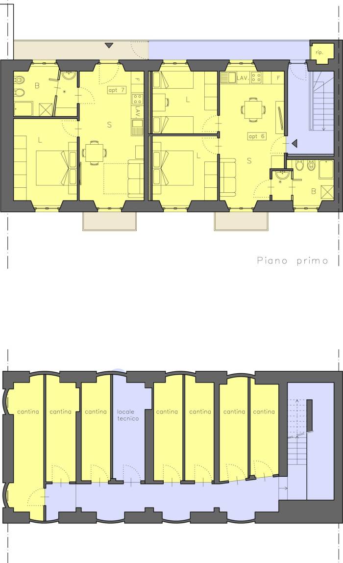
Casa Soana si sviluppa in tre corpi: il fabbricato principale su due piani è affacciato su via Soana 17, altri due corpi si affacciano sul giardino interno. Il progetto prevede 7 appartamenti di cui 5 al piano terreno con giardino privato e due al primo piano con balconi.
La ristrutturazione dell’edificio è rivolta al rinnovamento estetico e funzionale e ad un miglioramento delle prestazioni energetiche. L’impianto di riscaldamento a pompa di calore (con caldaia a condensazione coadiuvante) garantirà bassi consumi e risparmio sulle bollette. I nuovi serramenti altamente isolanti garantiranno anche un elevato isolamento acustico.
Progetto: Zucca Architettura – Costruzione: Beria Grande srl
PIANTA PIANO TERRENO

PIANTA PIANO PRIMO E INTERRATO


